集中協調式交通信號控制機
CY-TSC-48使用說明書

1、簡介
CY-TSC-48型交通信號控制機(簡稱CY-TSC-48信號機、或信號機)是根據中國國家標準GB25280規范最新設計并制造的。產品設計定位國內高端應用的多功能交通信號控制機,可滿足不同規模城市的交通控制需求、及廣泛適用于各類交通信號燈負載。
信號機采用先進的模塊化多處理器、多總線系統結構,靈活的多功能固化應用軟件,使用戶可以通過PC上“參數配置工具”實現多種方式的控制:a.路口交通信號控制;b.路段行人過街控制;c.車道信號/標志控制;d.匝道控制;e.快速路匯/分流控制;f.隧道交通控制。
信號機以相位在階段中組合的概念為基礎,通過靈活的時序邏輯和組合邏輯配置,實施多種交通信號控制方式。可以通過多種數據接口,如以太網及RS232等與其它相關的現場設備交換信息。具有非常嚴謹的故障監控功能,通過軟、硬件相結合的綜合手段進行:a.信號機軟硬件故障診斷與監測;b.雙級交通信號驅動故障監測;c.綠沖突監測;d.信號燈故障監測;e.供電質量及工作環境監測等。
2、技術參數
2.1、功能描術
4種基本工作模式及優先級控制(待機控制、定周期多時段控制、手動控制及特勤控制)
支持16個燈組,32個信號階段,15種配時方案,48路輸出、24路地磁、16路視頻車檢輸入;
支持自定義開機燈序、有通行權和無通行權切換的燈色變化順序
支持13種星期組合方式及特殊日定義、支持32個時間表計劃調度、及GPS校時、
配備RJ45和RS232硬件接口,支持TCP/IP以太網通訊協議及串口數據
支持綠波帶控制、信號燈綠沖突及掉電監控,環境監測,電壓、溫度、頻率等
2.2、電氣指標
電壓:工作電壓:AC176~264V 、 頻率:48~52Hz
絕緣電阻:絕緣電阻大于100MΩ。
整機功耗:整機功率不超過30W(不包含紅綠燈功率)。
輸出功率:每路最大輸出功率300W。
2.3、物理指標
工作溫度:-40℃~70℃
工作濕度:< 95%無結露
機箱尺寸:148cm(高) x69cm(寬) x 46cm(深)
整機重量:≤60kg
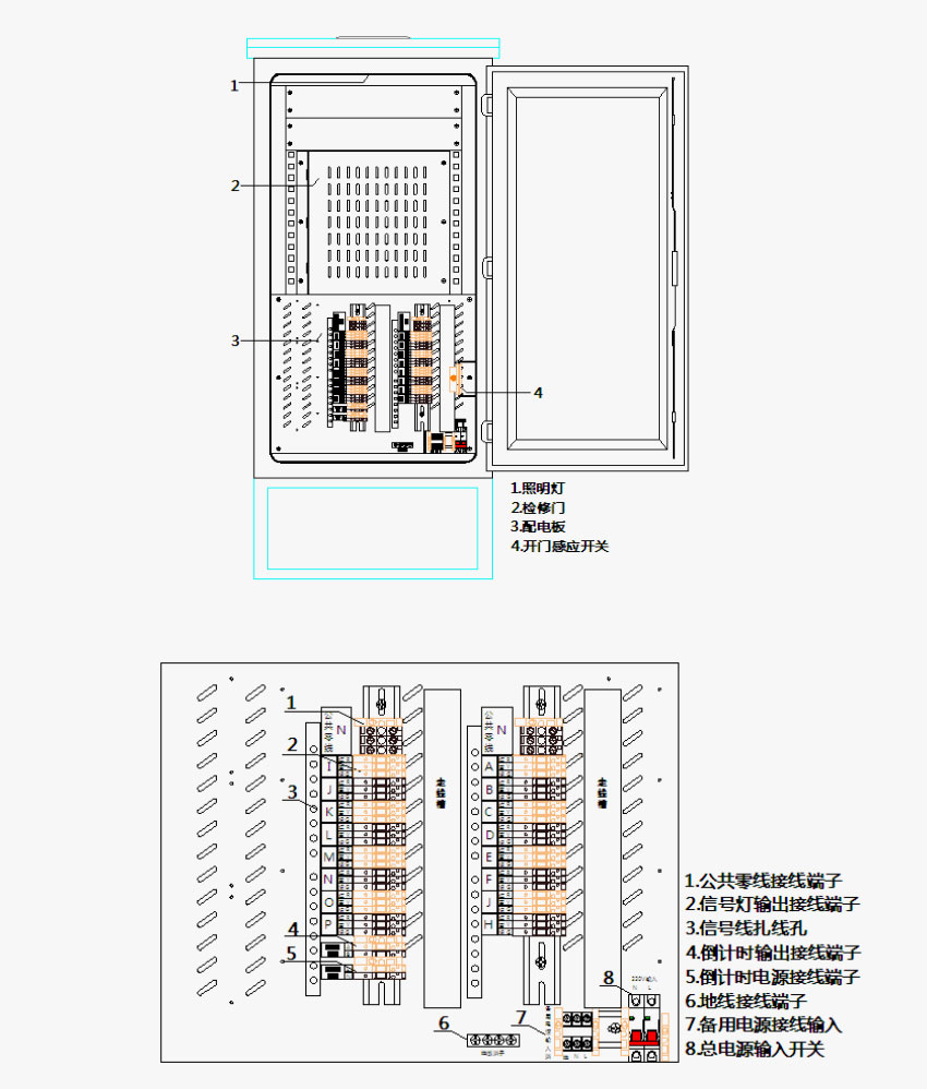
3、外觀及內部組件
3.1.信號機內部前視圖
電源板:提供+5V,+12V直流電源給信號機
主控板:實現信號機的控制,數劇處理,通訊和運行狀態顯示(如黃燈亮電源正常、紅燈亮為出現故障綠燈亮正常運行)。
驅動板:每板驅動板可驅動12路信號燈,并每塊板都有電流檢測功能,實現故障鑒控。

3.2.信號機內部后視圖

3.3.信號機手控板視圖
手控板位于機箱的側面,YH-TSC-48信號控制機有4種主要控制方式(1.待機控制方式;2.多時段定周期控制方式;3.手動控制方式;4.特勤控制)。信號機根據優先級列表選擇當前運行方式,每個階段流會獨立運行當前請求下擁有最高優先級的控制方式。未配置優先級的控制方式不能運行。
YH-TSC-48信號機手控面板配備了的LED指示燈:
【手動】燈:按下按鈕后,該指示燈點亮,表示進入手動控制模式。
【自動】燈:該指示燈點亮時,表示信號機進入自動控制模式,按信號機內預存的配時方案自動運行。
【全紅】燈:在手動控制模式下,該指示燈點亮時,表示所有紅色信號燈都點亮。 【步進】燈:進入手動控制模式后,該指示燈點亮,表明【步進】按鍵有效,每按一次
【步進】按鈕,信號機就運行到下個階段。
【故障】燈:該指示燈點亮,表示信號機出現故障,需工程技術人員到現場處理。
【等待指令】:該指示燈點亮,表示信號機正常運行。
手控面板圖

4、基本概念
4.1、相位
相位是向一個或多個交通運動顯示的同一交通信號序列,一個相位可以出現在一個或多
個階段中。

YH-TSC-48能支持最多16相位的信號輸出(A~P),可分為:1、交通相位;2、行人相位。
相位一般規定:4個相位為一組方向,從上到下,分別為左轉,直行,右轉,行人。默認方
向順序:東,南,西,北。
4.2、階段
階段是在一個信號周期內,為一個或多個交通流同時給出通行權的信號顯示狀態。一個階
段可以包括一個或多個信號相位,這些信號相位不相互沖突。
在YH-TSC-48信號控制機中,階段是一個循環中的基礎時間單位;
YH-TSC-48信號機能支持16個階段;
每個階段至少包含1個相位;
階段1 通常是啟動階段,此階段必須存在。
5、YH-TSC-48信號機參數配置
5.1、YH-TSC-48配置監視工具軟件簡介

YH-TSC-48信號機參數配置通過基于Windows環境的專用配置工具YH-TSC-48配置監視工具軟件進行,通過這個軟件可以對YH-TSC-48信號機進行參數配置和運行監控。
YH-TSC-48配置監視工具軟件具備數據下載功能,可以通過網絡將配置數據下載到信號機中;也可以將信號機中的配置數據上載并保存到計算機中。
5.2、運行環境
YH-TSC-48配置監視工具軟件運行環境要求,操作系統:Windows 7/Windows XP/Windows 2000/Windows 2003;硬件環境:CPU要求PIII以上,硬盤要求400M以上剩余空間,內存要求512MB以上;網絡:10M/100M/1000M 以太網絡接口卡,支持TCP/IP協議。
5.3、操作方法


上圖可對《新建配置文件》進行【路口形狀】【車道】【燈組】【方案】【車檢器】【時間調度】等功能編輯,在對信號機進行“參數及功能配置”時,可用【上一步】或【下一步】逐頁進行配置、及點擊【保存】對編輯好的“參數和功能配置”進行保存。
5.5、參數配置
1)﹝路口形狀﹞配置:
如下圖我們可按實際路口點擊選擇所需路口圖形配置,我們選擇點擊﹝十字路口﹞形狀,點擊【保存】,再點擊【下一步】進入﹝車道﹞配置。

2)﹝車道﹞配置:
點擊
來設置車道數,下圖設置為3車道。再點擊車道標識,可將車道設置為“左拐、直行、右拐、直行+左拐、直行+右拐”等標識。設置OK后【保存】進入【下一步】。

3)﹝燈組﹞配置:
此頁配置可對燈組進行:編號,方向、目標類型及位置進行定義設置;并可對綠燈延伸時間、及倒計時與燈組綁定和編號設置。

﹝燈組﹞配置設置操作:點擊要編輯的﹝燈組﹞行例,按鼠標右鍵,將會出現右圖介面。通過介面提示可以對﹝燈組﹞進行【新增】【修改】【啟用】【停用】【排序】。
注1:YH-TSC-48信號機只可以支持16組燈組,48路燈輸出,如要更多燈組時要另行配置處理。
注2:燈組﹝編號﹞排放位置修改,可以點擊需要修改的編號圖標,再選擇上圖方框欄內(A、B、C、D - - - M、N、O、 P)英文字,點擊后即會變換位置。

修改﹝燈組﹞配置操作:點擊上圖介面【修改】將顯示右圖介面,我們可以對﹝燈組﹞如右圖介面提示進行編輯及修改。注:綠燈延伸時間:即感應模式下每次延伸請求的相位綠燈擴展步長,(有安裝感應器材時才可用)。
注:倒計時牌號:信號機具有所有相位輸出倒計時的功能,一般可以將1個或2個相位倒計時信號輸出到同一塊”485通訊模式”倒計時上(如左轉與直行信號一起輸入到倒計時)。

4)﹝相位﹞配置:
此頁可對燈組﹝相位﹞進行【新增】、【修改】、【刪除】、【清空】等編輯操作。如下圖﹝十字路口﹞相位配置操作:

例1:﹝東西直行﹞相位配置,點擊介面【新增】出現下圖,輸入﹝東西直行﹞相位名稱,點擊【OK】介面左邊出現下﹝東西直行﹞階段圖標,(注:最大可支持16組信號相位)。

如現將﹝東西直行﹞相位階段配置為(直行、右拐,及北邊東西方向人行燈,南邊東西方向人行燈)一起放行。此時只要用鼠標點擊﹝相位﹞介面《B、J直行燈組,C、K右拐燈組,D、L人行燈燈組》使其“紅色標識狀態”變成“綠色標識狀態”即可,如下圖示。

另:其它﹝東西左轉﹞、﹝南北直行﹞、﹝南北左轉﹞相位通行階段設置,與上面“ 列1”﹝東西直行﹞相位通行階段設置操作方法一樣。
注:如需要增加燈滅和黃閃,需要如右圖鉤選“
”。
以上配置操作完后點擊【保存】,再點擊【下一步】進行﹝方案﹞配置編輯操作。
5)﹝方案﹞配置:

﹝方案﹞主要規劃信號機的基本配時設計,在YH-TSC-48配置監視工具軟件中,前面配置的信息已被映射至本頁。每個CLF方案必須對應某一個階段流,總共可配置32個信號階段、128個方案。上圖為<方案配時>圖例,方案包括﹝方案﹞數、﹝周期﹞、﹝階段數﹞、﹝相序﹞,﹝相位描述﹞、﹝綠、黃、紅燈時長﹞及﹝階段總時長﹞,所有方案設計中時間單位為“秒”。
﹝方案﹞配置操作步聚如下:
1.用鼠標點擊【新增方案】建立一個新方案,然后點擊【新增階段】配置階段運行組合。每新增一個階段,此時方案的﹝周期﹞時間及﹝階段數﹞組合數,都會增加。在﹝方案﹞列表中﹝周期﹞表示方案運行一個周期的時間長度。(注:如需要修改,可點選要修改的項目,再點擊【刪除方案】或【刪除階段】即可)
2.點擊【燈序設置】將出現右圖介面。用戶可以定義獲得通行權和失去通行權時的燈序。與燈序相關聯的時間也可以在此配置頁中設置,還可以根據需求設定特殊信號序列。系統共提供8種信號燈序的定義選擇,其中燈序0和燈序5默認為一種機動車燈序和行人燈燈序。

YH-TSC-48可支持多種燈色,如滅燈、紅燈、黃燈、綠燈、紅黃燈、黃綠燈、紅閃燈、黃閃燈、綠閃燈、紅閃+黃燈、黃閃+綠燈、黃閃+紅燈、綠閃+黃燈、紅閃+黃閃、綠閃+黃閃,共十五種。
閃燈模式包括信號燈的閃爍頻率和占空比,閃爍頻率設置有1Hz和2Hz,占空比設置有40%、50%、60%和70%共四種。
3.點擊【參數設置】將出現右圖介面。此設置用于(脈沖型倒計時),其中“倒幾秒”是指倒計時從第幾秒開始倒計時。如設置為“15秒”則為從15秒開始倒計時直倒計時倒到0秒結束。“脈沖時間”用于調整倒計時脈寬,一般我們設置20mS。

4.﹝階段編輯﹞:主要用來設置各相位的綠燈亮燈時間長度。如“東西直行”時間的綠燈亮燈時間50秒,先雙擊階段“東西直行”,此時出現﹝階段編輯﹞,再在﹝選擇相位﹞里選擇“東西直行”,然后在﹝綠燈時長﹞里寫入50即可,最后點擊【確定】保存。如下圖示:

5)﹝車檢器﹞設置:
車流量檢測器包括:地磁、感應線圈、有車檢功能的攝像頭等。如沒有安裝車流量檢測器則此﹝車檢器﹞設置項目就不需設置。如需設置,雙擊每個階段號欄就會出再下圖介面,按照階面提示設置需要即可。
注:最小綠和最大綠:用于約束相位的最小和最大綠燈亮燈時間,在感應模式時該參數起關鍵作用。

6)﹝時間調度﹞設置:
時間調度表格用于管理系統的主時間表。YH-TSC-48信號機內部具備實時時鐘,所有信號機動作都可以依據預定義的時間表運行。下圖是信號機時間表配置頁面:

點擊表格各行序號欄激活該行并可輸入數據,下拉菜單按鈕將出現在每個表格單元的右側,表示多個數據可供用戶選擇。如果表格呈灰色,說明當前參數不適于本事件項。例如日期類型設置為“自定義”,“開始日期”和“結束日期”才可設置,否則該項數據無效。

注:1.日期類型:有“類型0---類型9、自定義”,共11個日期類型。
2.開始日期、結束日期:此項只有在“自定義”日期類型才可用。
3.執行時間:為24小時制,可以設定所需開始執行時間的:時鐘、分鐘。
4.功能:可以設定各種功能動作,每種動作需要定義不同的參數,通過下拉菜單選擇時間表命令,具體描述如下:
→0--定周期方式:進入FT模式并引入固定時間方案,參數為方案編號。
→1--待機黃閃:信號機輸出為只有黃燈閃亮。
2 →2--待機全閃:信號機輸出為只有紅燈亮。
2 →3--無電纜協調方式:進入CLF模式并引入CLF配時方案,參數為方案編號。
2 →4--感應方式:指定某一個方案進入VA 模式,參數一為引入的方案編號,參數二應指定“非協調控制生產展示