1.箱體安裝
箱體尺寸:1700*700*550mm
建議箱體基礎面積不少于800mm*600mm,基礎高度不低于300mm,采用C25混凝土澆筑。采用預埋螺栓或后期打膨脹螺栓方式固定。
2.電氣接線
2.1 進線
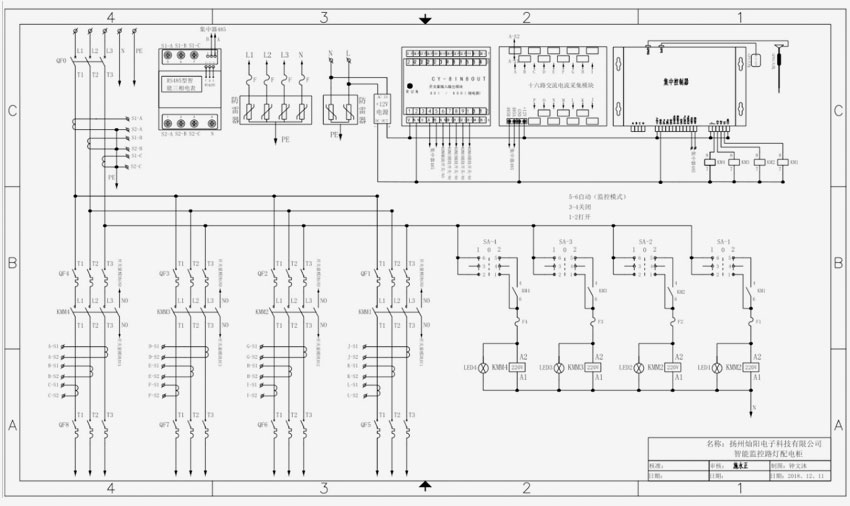
接380V進線,本配電箱采用TN-S系統,進線A,B,C引至配電箱內部上端,經過ABC相電流互感器進入總空氣開關上樁頭。零線接配電箱內零排,地線接配電箱內地排。配電箱需可靠接地,接地電阻不大于4歐。
2.2 出線
配電箱下端漏電斷路器成組輸出,至路燈供電線纜,且具有漏電跳閘功能。當該回路漏電流大于300mA時,斷路器斷開。在送電前,確保各回路無漏電現象。
負載均衡,在布置路燈負荷時,需考慮ABC各相負載均衡。
1、路燈監控箱尺寸1700*700*550mm,箱體為304不銹鋼材質,厚度不小于1.2mm,前后單開門,全面噴塑,顏色為果綠色。
2、控制箱內遠程監控系統需配置可與監控室內系統通訊的通訊流量卡,通訊流量卡使用期限不低于3年。
3、路燈控制箱要求如下:
4、電氣元件主要技術參數要求:
5、①防水等級:IP65
6、②主要電氣設備:630A刀熔開關或CDM3-630-3P塑殼式斷路器、220V CJ-20-160A三相交流接觸器4臺、CBD2LE-100A-1P+N(漏電電流100mA)單相漏電保護開關12只、路燈遠程監控系統1套(遠程監控系統及單燈控制器需與當地現有路燈監控電腦系統連網兼容,如無法兼容在需提供一臺電腦并在當地加裝系統)
7、③測量參數:總電流、總電壓、各出線支路電流、交流接觸器斷合狀態
8、④控制狀態:可遠程遙測電氣參數、遙控接觸器開斷;4路控制輸出;可根據經緯度自動調整每日開關燈時間。
9、內有單燈控制器通訊模塊。

配電箱上電后,電源藍色指示燈會打開,集中器會得電,其指示燈也會閃爍。
本配電箱采用遠程控制,通過登錄云平臺賬號 或 APP實現遠程控制和測量。
1 云平臺方式:瀏覽器登錄 www.pyhansong.cn網站

2 APP方式

燦陽物聯網路燈監控平臺軟件采用B/S架構,在路燈安裝地所在國設置靜態IP地址,保證快速,可靠訪問。
該平臺軟件主要實現以下功能:
控制功能 ---- 遠程開關、策略控制(定時開關、經緯度 光控(可選配))
查詢功能 ---- 電壓、電流、功率、功率因數、電量、開關狀態
報警功能 ---- 路燈 / 隧道燈故障報警、通信失敗告警,短信報警
電箱設備報警(漏電,線纜防盜,水浸,缺相,開門)
報表功能 ---- 能耗及亮燈率分析報表
存儲功能 ---- 系統運行歷史記錄
運維功能 ---- 日常參數設置、GIS信息顯示(地圖顯示單燈信息)
手機APP ---- 配套手機APP可移動管理控制
5.1 登錄界面
5.2新建區域
5.3 輸出IO口控制,讀取電表
5.4 查看和調節單燈
5.5 編輯亮燈方案,時序調光動作
5.6編輯開關方案
5.7設備報警配置
5.8 報警日志
5.9短信提醒

5.10 查看路燈在地圖中的狀況
設備地圖
燈地圖
5.11 能耗統計
5.12 用戶管理
